The MG McGrath Screening Systems are designed to combine durability, functionality, and architectural appeal for structured parking facilities. With customizable perforation patterns, panel depths, and attachment systems, our screens balance ventilation, security, and aesthetics. Available in both unitized and stick-built configurations, the system is engineered for efficiency in installation and adaptability to a wide range of design requirements. Panels can be fabricated in aluminum or steel, with optional coatings and finishes to achieve desired performance and appearance.
MG SCREEN SYSTEMS
PERMEABLE FACADES FOR IMPERMEABLE STRUCTURES
STICK-BUILT
SCREEN CLADDING SYSTEM

Screen cladding adds a modern decorative element to any building project. Whether you’re dressing up a parking ramp retrofit or creating a new elegant façade, our prefabricated screen cladding systems don’t compromise on durability, breathability, or visual customization.
Our stick-built screen systems are a great choice for buildings and structures with relatively small areas that need to be cladded, or for facades with a lot of variation. Our prefabricated screen systems are cut in-house on our state-of-the-art equipment which means faster production times for a more efficient material turnaround and cost savings in labor.
Adding screen cladding to a parking structure or building not only adds to its visual appeal, but also adds extra layers of shade, privacy, ventilation, noise reduction, safety, & security. Turn your building or parking ramp from an eyesore to a visual focal point with one of our tailored stick-built screen cladding system options.
UNITIZED
SCREEN CLADDING SYSTEM
Our unitized screen systems are great for covering larger surface areas, faster, and are designed to seamlessly integrate into a retrofit project on an existing campus, or be the visual framework for a new build. The cladding materials we use are durable, weather resistant, sturdy, and breathable, while still being accommodating to endless design options and customizations. Our curated unitized screen systems are the perfect solution both functionally and visually to balance privacy and coverage with modern curb appeal and proper airflow.
Utilizing early collaboration as well as advanced technology and fabrication equipment allow us to fabricate larger portions of a facade or architectural construction pieces in our shop, effectively minimizing the hazards and time spent for field installation. With these added benefits of prefabrication, we have the capabilities to turn nearly any screening idea into a reality, including perforated imagery and other custom perforation shapes, spacings, and patterns.

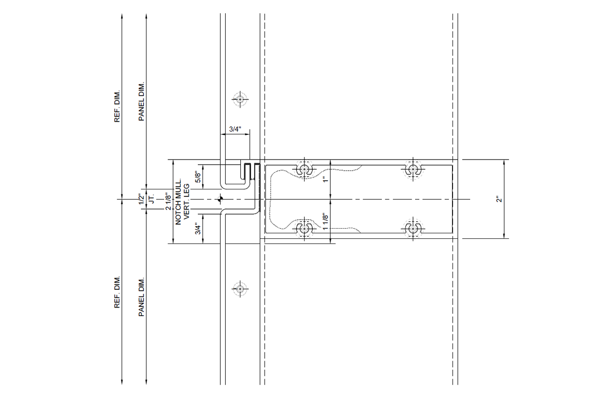
SYSTEM COMPOSITION
MATERIAL CHOICES & FINISHES

| MATERIAL | THICKNESS | SIZES | FINISHES |
| Aluminum | .080" – 1/4" | Width: Up To 60" Height: Up To 144" | Anodized, painted, and powder-coated finishes (standard or custom) |
| Steel | 18 – 16 gauge | Width: Up To 60" Height: Up To 144" | Galvanized, painted, and MG steel custom patina finishes |
| Stainless Steel | 18 – 16 gauge | Width: Up To 60" Height: Up To 144" | Standard and custom colors available |
| Copper | 24 oz – 32 oz | Width: Up To 36" Height: Up To 144" | Standard and MG copper custom patina finishes |
| Zinc | .8 mm & 1.5 mm | Width: Up To 39.3" Height: Up To 144" | Standard and MG zinc custom patina finishes |
*Materials, sizes, and thicknesses are general guidelines and estimates. Capabilities and options may vary as material gauge and panel length fluctuate. Please contact us for a more detailed range of size options and capabilities based on your project’s requirements and design intent (as engineering allows)*
TECHNICAL DATA & SPECIFICATIONS
FEATURES & OPTIONS
Features & Options
-
Suitable for new construction or retrofit parking structures
-
Span capabilities up to 12’ floor-to-floor (dependent on tube sizing and perforation thickness)
-
Standard perforation thicknesses available; custom patterns upon request
-
Optimized ventilation while maintaining safety and visual screening
-
Multiple connection strategies back to structure for cost-effective installation
-
Designed for long-term durability and minimal maintenance
-
Can be coordinated with integrated lighting, signage, or branding elements

PROJECTS WITH MG SCREEN SYSTEMS
REAL-LIFE APPLICATIONS






















